永安市自然资源局关于马坑B地块65#-68#楼地下室局部变更的公示
2021年7月5日,永安市宁港置业有限公司向我局申请对马坑B地块65#-68#楼地下室平面布局进行调整,具体如下:
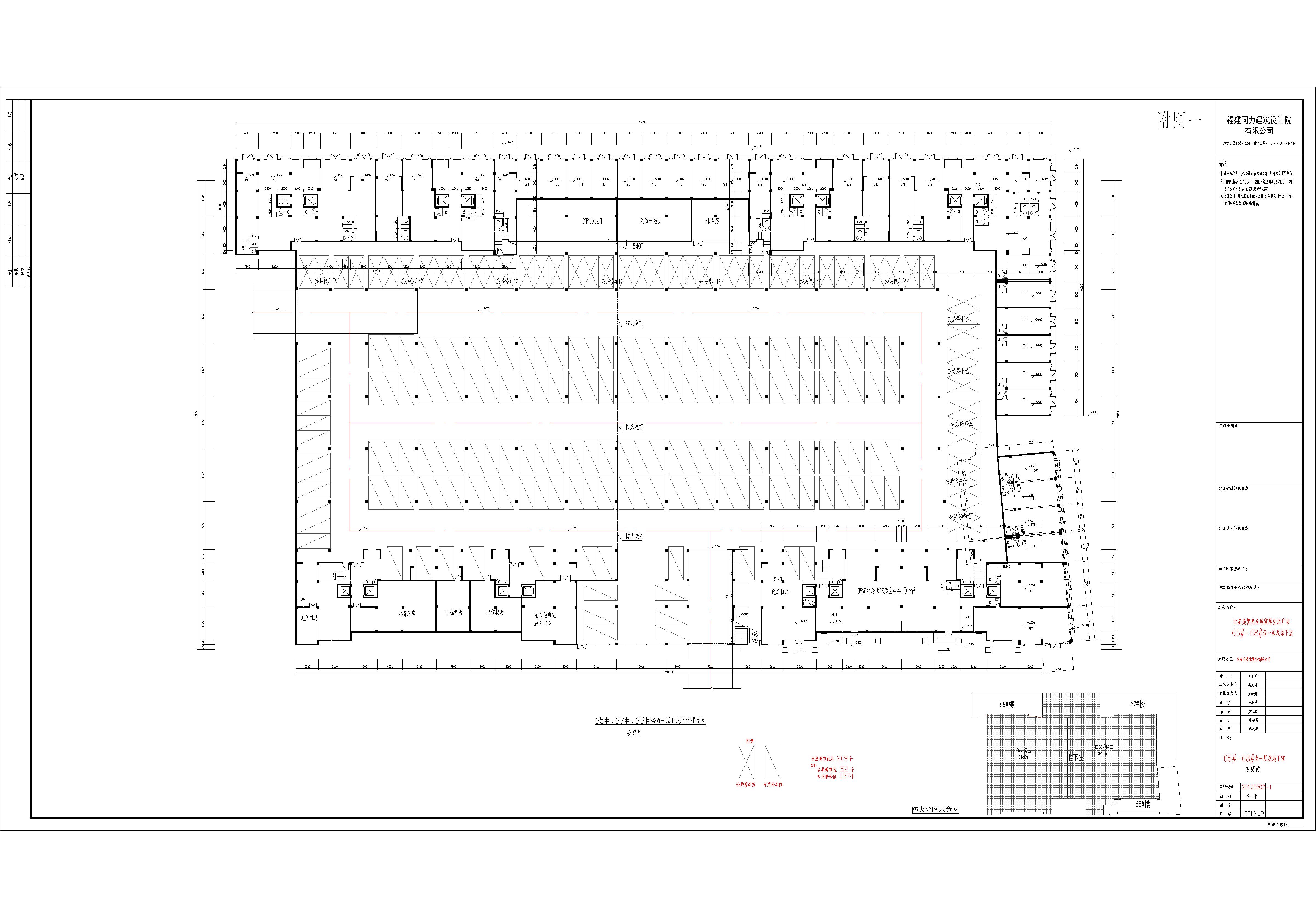
1、消防水池及水泵房位置从地下室北侧调整到地下室南侧;设备用房、电视机房、电信机房位置从地下室南侧调整到地下室北侧;消防值班室监控中心调整到2#楼东侧。(详见附图)。
2、地下室南侧增设公共配电室,占用的3个车位在公共配电室北侧补齐,D-6轴处楼梯北侧增设设备用房。(详见附图)。
以上调整符合规划条件要求,现对上述调整事项予以公示。
联 系 人:小 张 0598—3853119
永安市自然资源局
2021年7月19日
扫一扫在手机上查看当前页面


闽公网安备号: