永安市自然资源局关于澜山世纪设计方案变更的公示

日期:2021-08-09 16:37 来源:永安市自然资源局
| | | |

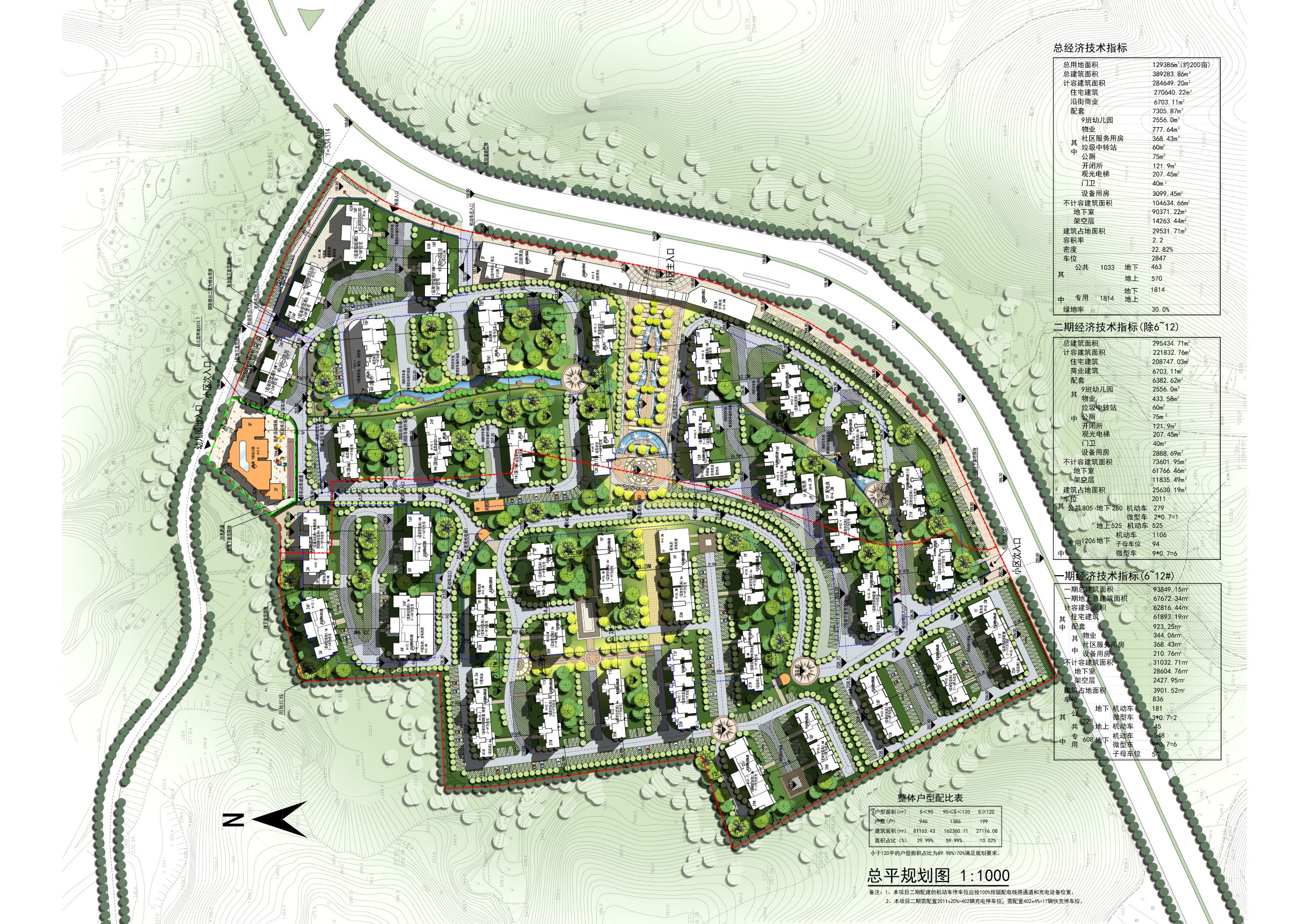
  2021年8月9日,福建伟恒通房地产开发有限公司向我局申请对澜山世纪一期地下停车位和二期方案进行调整,具体如下:

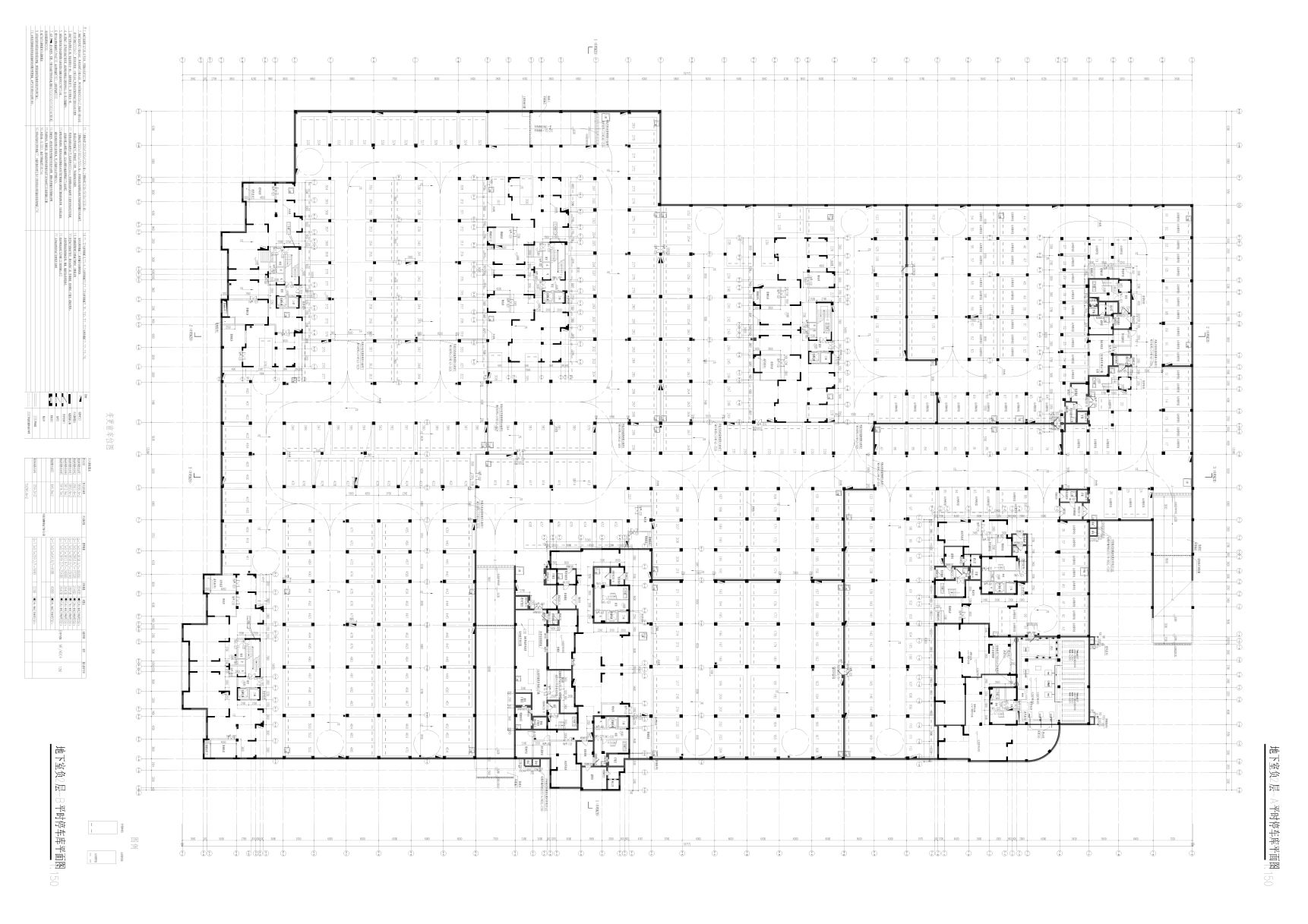
    1、因景观设计变更及柱网调整,一期地面和地下停车位局部进行调整。地面公共停车位由原来97个调整为45个,地下专用由原来574个调整为608个,地下公共停车位183个保持不变,一期公共停车位不足部分二期补足。

  2、二期规划方案户型、地下室、商业用房和平面布局进行调整。主要技术经济指标:总建筑面积295434.71平方米,计容建筑面积221832.76平方米,幼儿园2556平方米、物业用房433.58平方米、垃圾中转站60平方米、公厕75平方米。 

  经审查,该方案调整后能满足地块出让规划条件要求。现根据《中华人民共和国城乡规划法》要求对该规划设计方案变更予以公示。 

  联系单位:永安市自然资源局 

  联系人:小 张            

  联系电话:3853111       

  附公示内容:   

  1、开发单位申请报告。 

  2、规划总平面图。 

  3、一期地下停车位变更前、后图。 

  4、立面效果图和日照分析图。 

  永安市自然资源局 

  2021年8月9日 

扫一扫在手机上查看当前页面

相关链接: