永安市自然资源局关于宁港御景华府6#楼入户门厅、10#物业用房、38#楼局部变更的公示
2021年8月6日,永安宁港置业有限公司向我局申请对宁港华府6#楼入户门厅、10#物业用房、38#楼局部变更项目进行优化调整,具体如下:
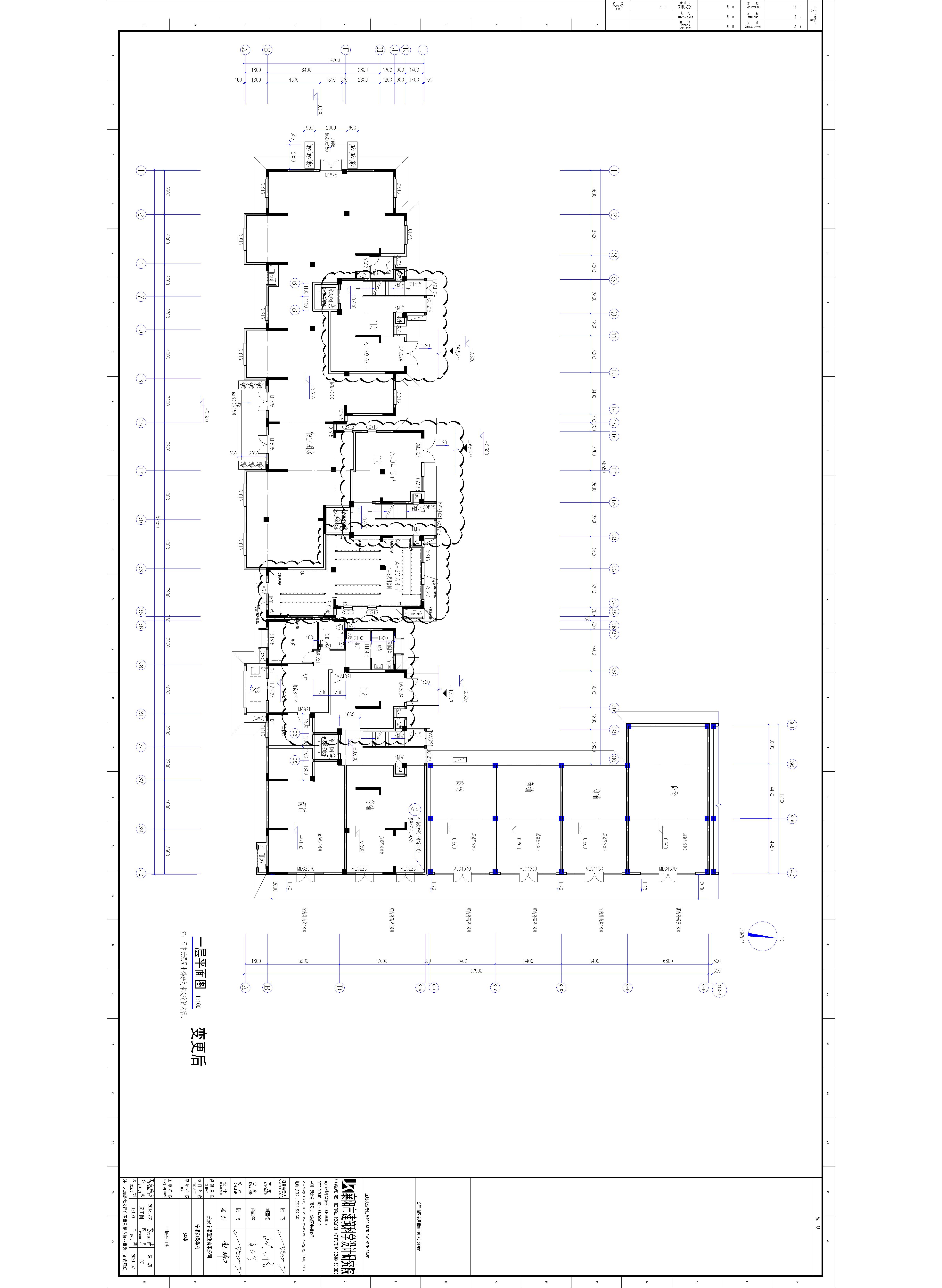
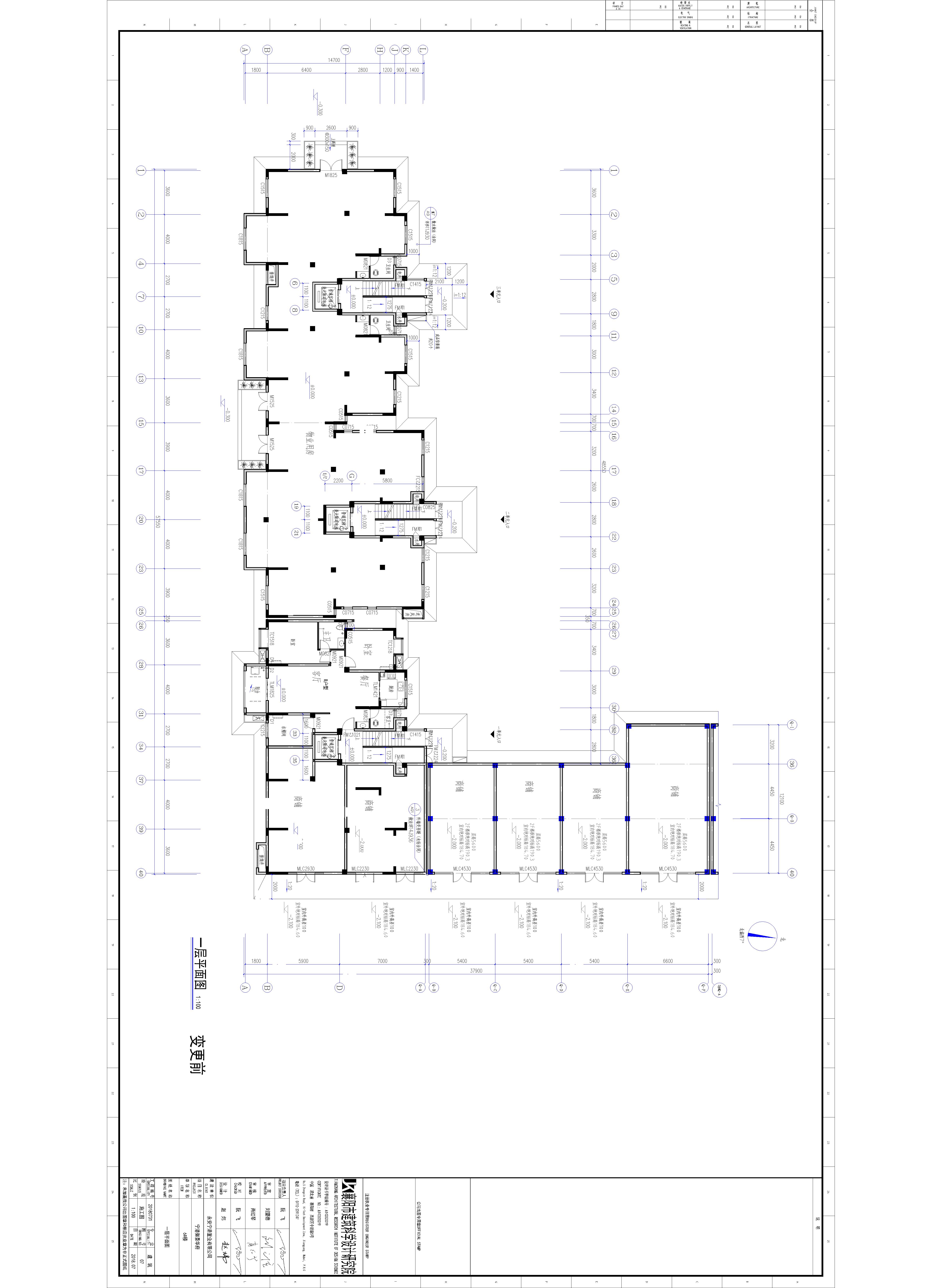
1、对宁港华府6#楼入户门厅进行优化调整。(详见附图)。
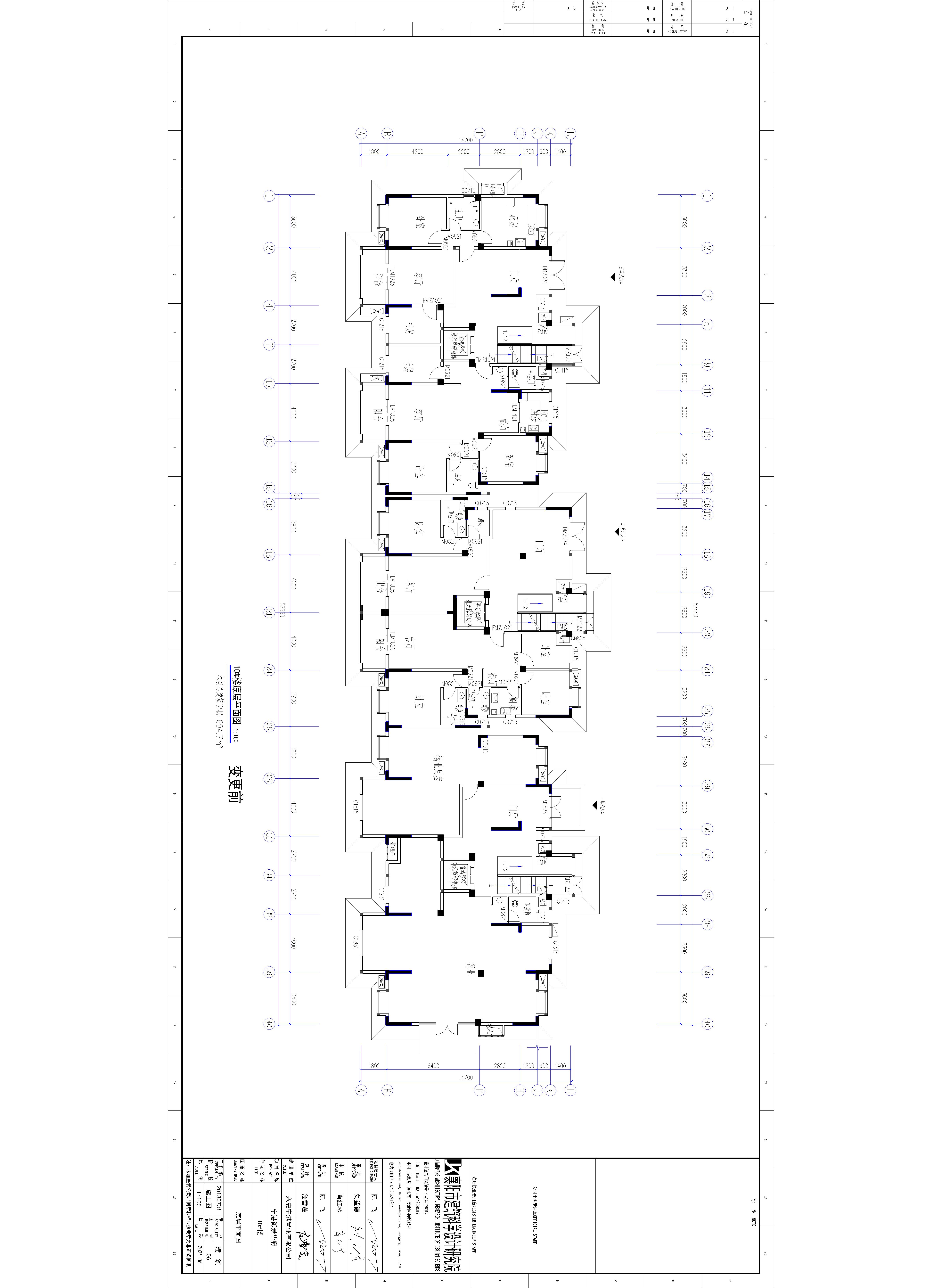
2、对宁港华府10#楼1单元物业用房进户门进行优化调整(详见附图)。
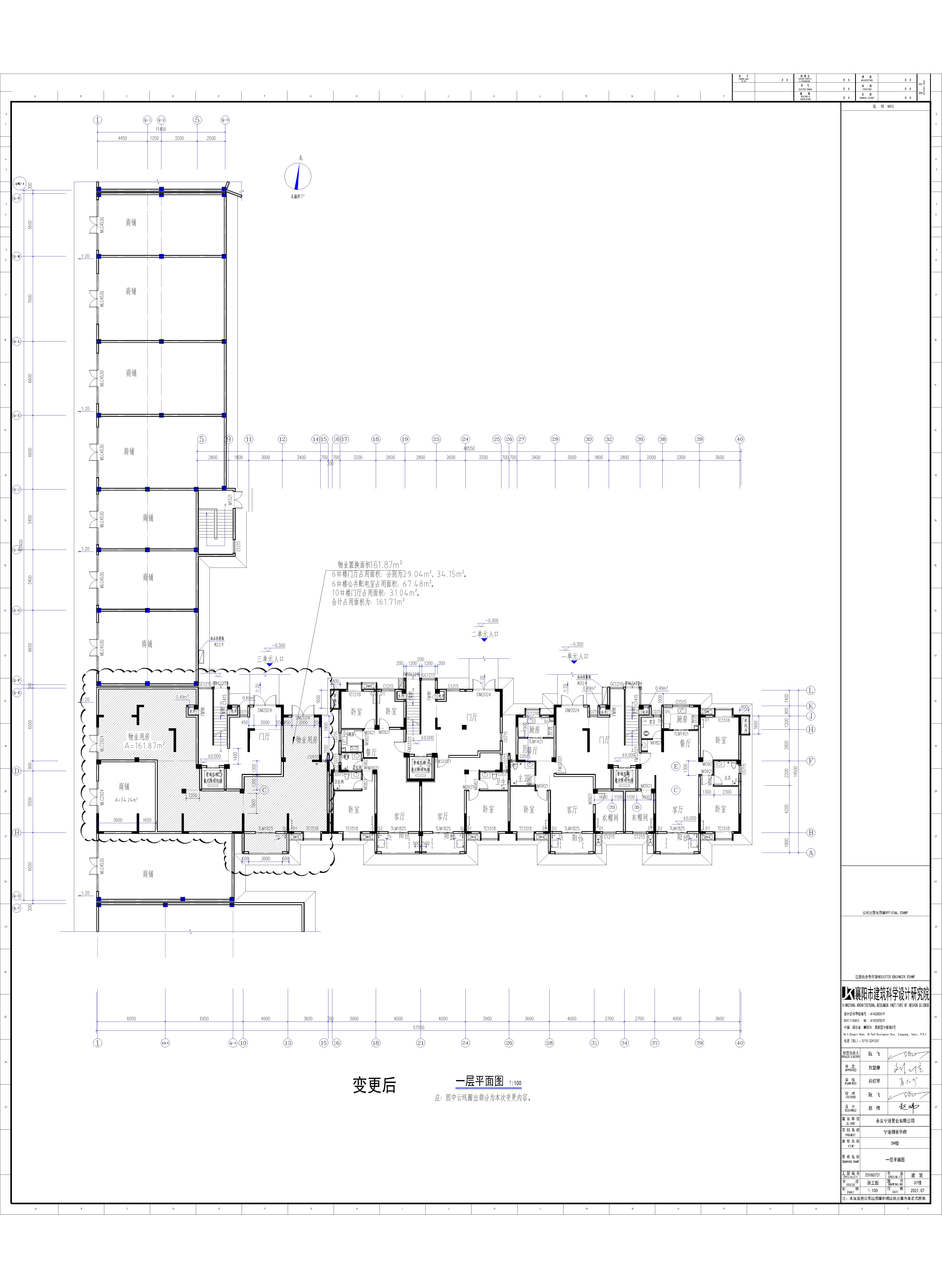
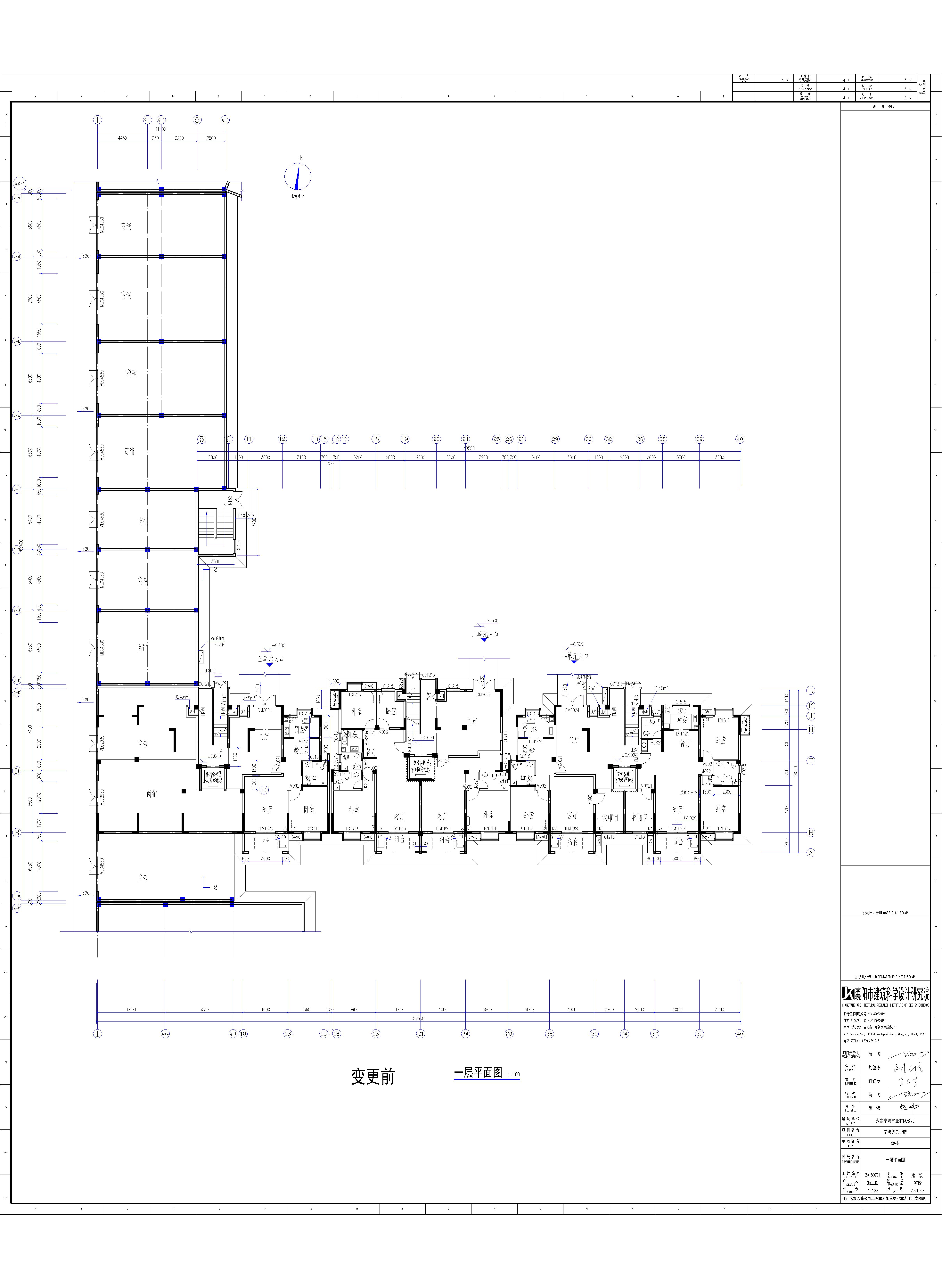
3、因门厅优化调整,6#楼、10#楼的物业用房面积减少161.71平方米,现调整到5#楼西侧店面及三单元位置(详见附图)。
4、38#南侧15间店铺与大商业进行整合,形成一个大的商业体(详见附图)。
以上调整满足规划条件要求,现对上述调整事项予以公示。
联系单位:永安市自然资源局
联 系 人:小 张 联系电话: 0598—3853119
永安市自然资源局
2021年8月9日
扫一扫在手机上查看当前页面


闽公网安备号: