永安市自然资源局关于宁港御景华府16#、17#楼入户门厅变更的公示
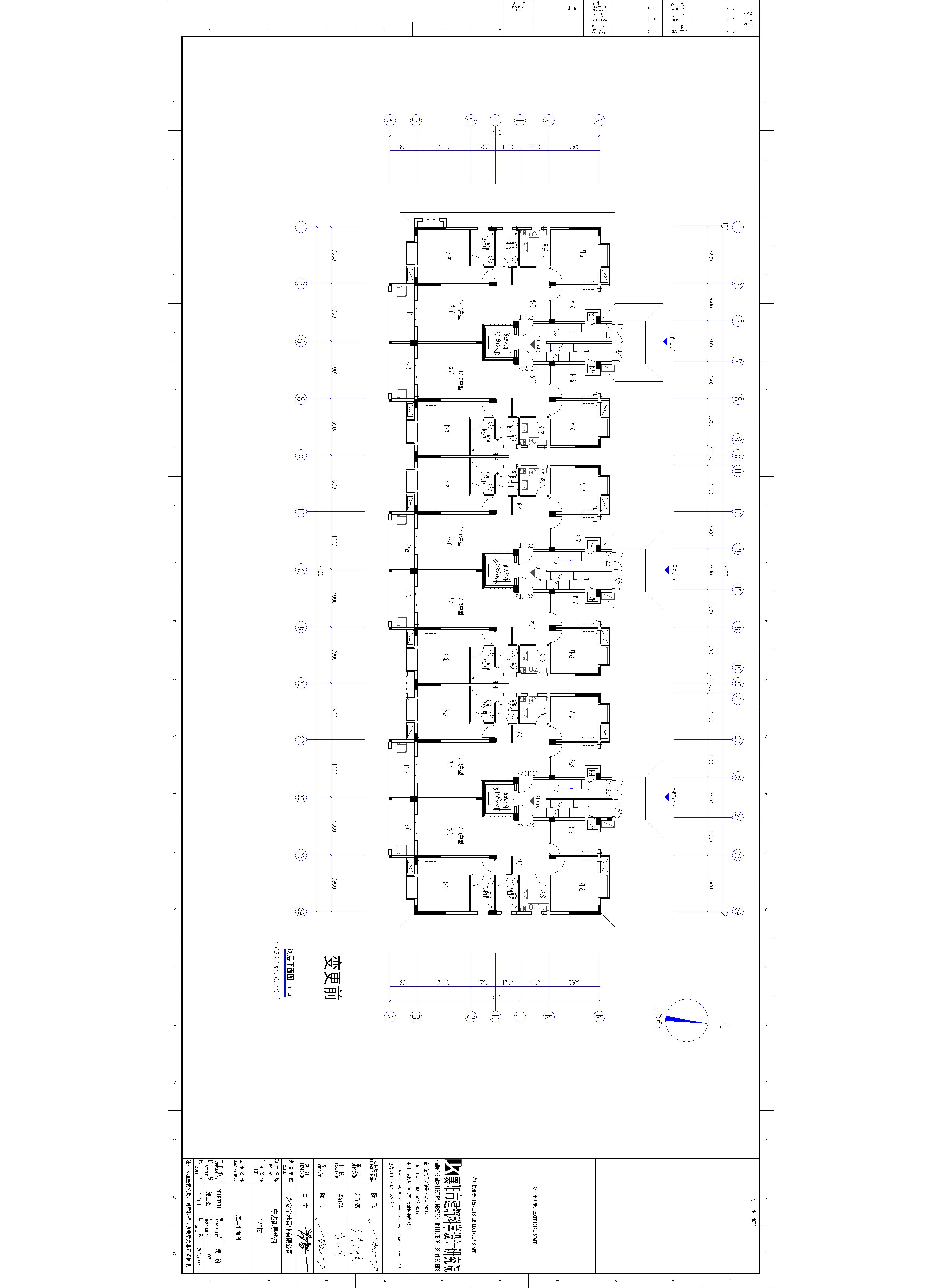
2021年8月4日,永安宁港置业有限公司向我局申请对宁港华府16#、17#楼入户门厅进行优化调整,方案调整后计容建筑面积、建筑密度保持不变,符合规划条件要求。
现将调整后的方案予以公示。
附:变更前后一层平面图。
联系单位:永安市自然资源局
联 系 人:小张 联系电话: 0598—3853111
永安市自然资源局
2021年8月9日
扫一扫在手机上查看当前页面


闽公网安备号: